Licht Appartement Dichtbij Rivierbedding

Prijs : 569.000€   : 3   : 3   : 108 m2

Referentie : 2329 - Geplaatst : februari, 2025

Propiedad en español Versión en español

Al het goede gaat snel, maar de makelaar hier is slim geweest. In plaats van overstelpt te worden met vragen over dit geweldige appartement in de Gran Via, aan de Reino de Valencia, op 100 meter van de rivierbedding, hebben ze hun best gedaan om het eruit te laten zien als een donker, onaantrekkelijk pand.

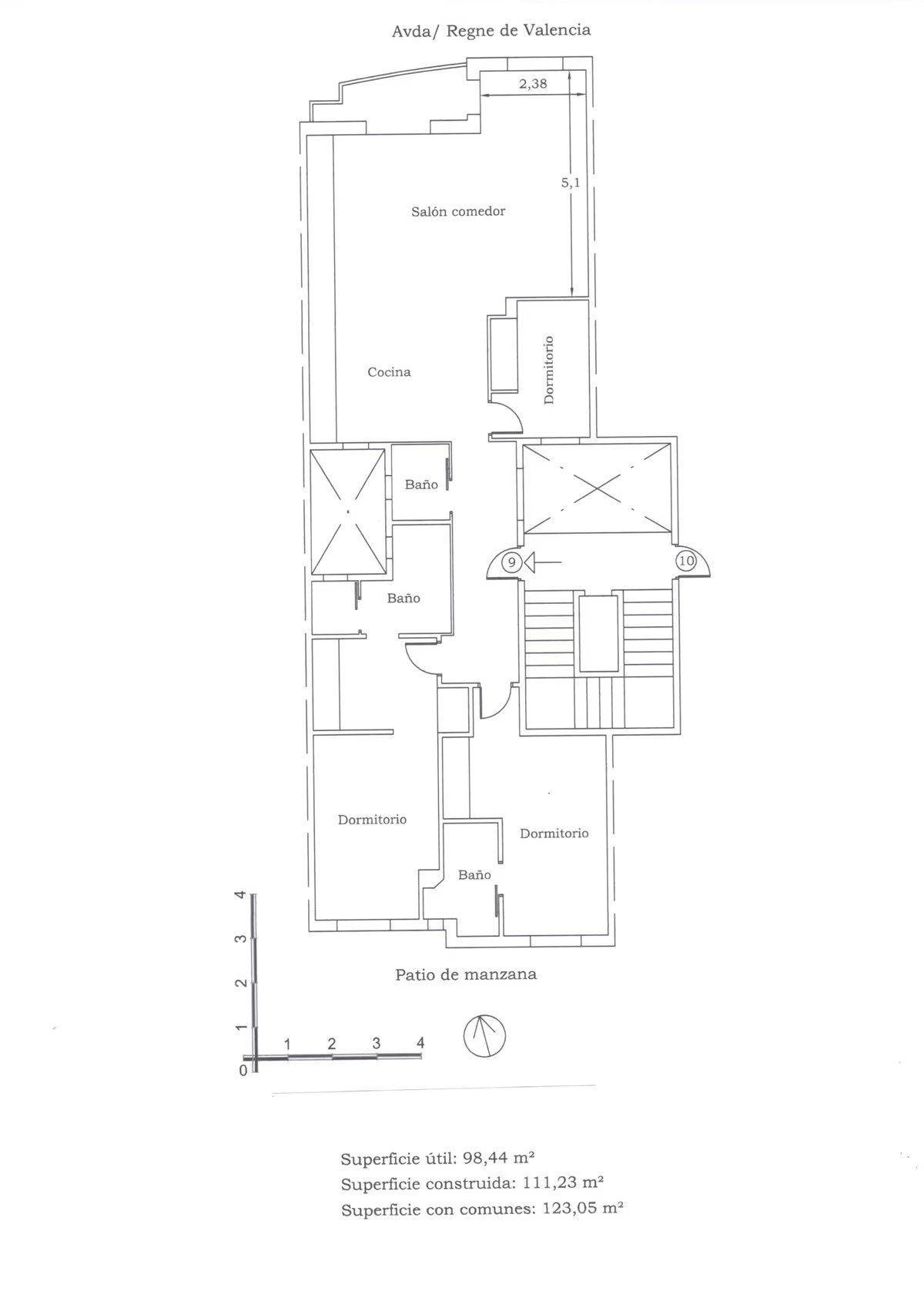
We hebben het echt gezien en ik kan je beloven dat het tegendeel waar is. Het is een appartement op de vierde verdieping, op het zuiden, aan een zeer open kruispunt. Vrijwel de hele dag zon. Er is een ruim balkon naast de keuken/woonkamer. Het hele pand is een paar jaar geleden volledig gerenoveerd.

Er zijn twee tweepersoonsslaapkamers, beide met eigen badkamer, en er is een derde toilet. In feite is er ook een derde slaapkamer/kantoor. Dit is uit het woongedeelte gesneden, en het is gedaan met het idee om het ooit weer weg te halen. Het zou dus een heel goedkope en gemakkelijke klus zijn om het te verwijderen, zodat je een heel groot woongedeelte overhoudt.

Mooi gebouw, mooie locatie, mooi appartement en een eerlijke prijs. Neem contact met ons op.

Houd er rekening mee dat de vraagprijs geen transactiekosten bevat. Wettelijke belastingen, notariskosten, registratiekosten en makelaarskosten komen meestal neer op 15% bovenop de aankoopprijs.


Je kunt hier meer lezen.

Vul het formulier in voor meer informatie

Alle velden zijn verplicht

Vul hier de verificatie code in 3309

Houd er rekening mee dat de vraagprijs geen transactiekosten bevat. Wettelijke belastingen, notariskosten, registratiekosten en makelaarskosten komen meestal neer op 15% bovenop de aankoopprijs.


Je kunt meer hier lezen.

Kenmerken van deze woning

Air Conditioning

Verwarming

Ingebouwde kasten

Lift

Kabel internet

Hoge plafonds

Dubbel glas

Uitzicht op de stad

Dichtbij rivier

Goed balkon

Licht